Cabinet de baterías exteriores de alto grado de protección contra robos para estaciones base de comunicación
1.Aplicación
ET7575160B-160 es un gabinete exterior que puede proteger el equipo del cliente de daños y condiciones climáticas extremas.El gabinete integrado puede suministrar energía para equipos de telecomunicaciones activos..
El gabinete al aire libre se utiliza ampliamente en los operadores de telecomunicaciones, sitios de telecomunicaciones móviles, pequeños refugios al aire libre, gabinetes de control eléctrico ferroviario, policía electrónica, estaciones base de comunicación,Estaciones de detección de aire exterior, el gabinete de control solar.
2. Características
● Grado de protección muy alto: IP55
● Fuerte capacidad antirrobo, puerta incrustada, bisagras internas, cerradura de tres puntos, que admite un candado adicional
● El aire acondicionado del sistema de enfriamiento está instalado en la puerta del armario, lo que facilita el mantenimiento, la limpieza y el reemplazo
● El uso de un revestimiento en polvo anticorrosivo en el exterior
● Todos los tornillos están hechos de acero inoxidable con un alto rendimiento anticorrosivo
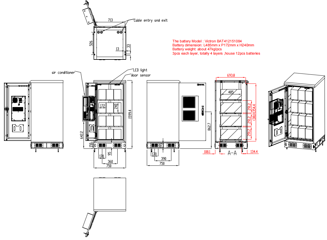
● Incluyendo cuatro estanterías de baterías.
3. Lista de configuración
| Configuración | Punto de trabajo | Parámetro técnico |
| El gabinete | Modelo | En el caso de las empresas de servicios de telecomunicaciones: |
| Nivel de protección | Protección IP55 | |
| Dimensión externa | W750mm×D750mm×H1600mm (puede ser personalizado) | |
| Espacio interno | 4 bandejas | |
| El material |
Acero galvanizado, de 1,2 mm de espesor, pared única espesor de las piezas de rodamiento: 2,0 mm |
|
| El aislamiento | PEF de 20 mm | |
| Revestimiento | Revestimiento en polvo de poliéster | |
| El color | Se aplicará el procedimiento siguiente: | |
| Encierra | Sistema de bloqueo de tres puntos anti robo (bloqueo de apoyo) | |
| Las bisagras | Las bisagras internas ocultas | |
| Instalación | Montado en el suelo | |
| Enrutamiento por cable | Cable dentro y fuera de la parte inferior del gabinete | |
| Mantenimiento | Una puerta principal, mantenimiento frontal | |
| Refrigerador | Aire acondicionado | 220VAC 50Hz, 600W |
| Las demás | Una lámpara LED de AC220V de 50 Hz para la iluminación, con interruptor de la lámpara | |
| Medio ambiente | Temperatura de trabajo | -40 °C ~ +55 °C (+ Radiación solar) |
| Temperatura de almacenamiento | -40°C~+70°C | |
| Humedad de trabajo | 5% ~ 95% ((sin condensación) | |
| Altitud de trabajo | 0 ~ 4000 metros | |
4.Dibujo del gabinete

5. Cuadro del gabinete de telecomunicaciones
