Bloque básico ultrasónico de la calibración del bloque ASME de la calibración para el examen de UT de soldaduras
Especificaciones:
Los bloques de la calibración son un material suplementario importante en la prueba ultrasónica, usada para calibrar la sensibilidad del detector ultrasónico del defecto y de la punta de prueba ultrasónica. Nuestro bloque de prueba es certificado por la autoridad del depeartment del estado. Nuestros productos incluyen: bloques de los estándares nacionales UT, bloque estándar europeo de UT, bloque del NDT, bloque de prueba hexagonal, y así sucesivamente. Proceso del bloque especial de las especificaciones UT.
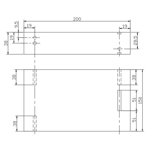
Se utiliza para el establecimiento de respuestas primarias de la referencia para el examen de UT de soldaduras, el bloque básico 1 de la calibración de ASME contiene tres agujeros lado-perforados en el mínimo profundo de 38m m en el diámetro de 2.5m m, las ubicaciones del agujero con el grueso son 1/4,1/2 y 3/4 T. También contiene 2 muescas de EDM que miden mínimo largo máximo wide*25 del 2% T deep*6.4mm de acuerdo con el Sec V T-434.2 de ASME.
| Soldadura Grueso (milímetros) | Dimensión del bloque (milímetros) | Peso neto | Peso bruto | Aparcamiento |
| Hasta 25 | 150×120×19 | 3,5 | 4,5 | Dirigir cajas de plásticos |
| Sobre 25 a 50 | 15×150×38 | 9 | 10 | Dirigir cajas de plásticos |
| Sobre 50 a 100 | 150×225×76 | 23 | 24 | Dirigir cajas de plásticos |
| Sobre 100 | 150×400×127 | 58 | 62 | Dirigir cajas de plásticos |
ASME que los bloques básicos de la calibración se piensan para ser representante de componentes reales, y por lo tanto que no tienen las superficies de exploración lisas encontradas en la mayoría de los bloques de prueba de fines generales como el IIW o el DSC. En lugar, nuestros bloques básicos de la calibración son medios arruinados en todas las superficies para crear una textura de la superficie áspera que sea más característica de las condiciones del mundo real de la inspección.
