El equipo desecante del deshumidificador para la cápsula/hace tabletas el ³ /h de la producción los 7000m
Detalle rápido:
Estilo: adsorción de la rueda
Rotor desecante: Suecia Proflute
Material desecante: rueda del gel de silicona
Flujo de aire clasificado: ³ /h de los 7000m
Capacidad clasificada de la deshumidificación: 50kg/h
Eficacia de deshumedecimiento: Alto
Poder instalado: 63.1kw
Fuente de alimentación: 380V/3P/50Hz o modificado para requisitos particulares
Certificación: CE, ISO9001: 2008
Características: Económico, ahorro de energía
Uso: Control de humedad del aire
Descripción general:
El deshumidificador desecante industrial ZCS-7000 quita la humedad del aire usando un material desecante-uno que atraiga y sostenga fácilmente el vapor de agua. Los deshumidificadores desecantes están especialmente bien adaptados a quitar la humedad del aire en la baja temperatura y la humedad baja.
En las unidades de Fuda, el desecante se impregna en un material compuesto de cerámica acanalado que se forme en una rueda. Pasos del aire fácilmente a través de las flautas, entrando en contacto con el desecante. La rueda gira lentamente (el rph 6 a 10) entre dos corrientes de aire. La corriente de aire de proceso entrante - la más grande - emite su humedad al desecante. El aire de proceso es seco pues sale de la rueda. La humedad – la rueda cargada gira lentamente en un segundo, una corriente de aire más pequeña se ha calentado que.
Esta corriente de aire más pequeña de extractor – llamó el aire de la reactivación – calienta el desecante. El desecante calentado emite su humedad, que entonces es llevada por el aire de la reactivación. El material desecante nuevamente secado se gira nuevamente dentro del aire de proceso, donde absorbe la humedad de nuevo.
Llevando por de alta tecnología, Hangzhou Fuda, con más de 30 años de experiencia en la fabricación del deshumidificador, provee del equipo de deshumedecimiento del aire el excelente rendimiento para toda clase de industrias.
Usos:
Ventaja competitiva:
Especificaciones:
|
Parámetros principales |
|
|
Modelo |
ZCS-7000 |
|
Circulación de aire de proceso |
7000 m3/h |
|
Circulación de aire de la regeneración |
2330 m3/h |
|
Capacidad clasificada de la deshumidificación |
50 kg/h |
|
Poder de la regeneración |
54 kilovatios |
|
Poder de la fan de proceso |
7,5 kilovatios |
|
Poder de la fan de la regeneración |
1,5 kilovatios |
|
Poder del motor impulsor |
0,1 kilovatios |
|
Poder instalado |
63,1 kilovatios |
|
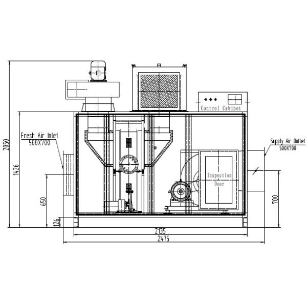
Dimensión |
2475×1262×2050m m |
|
Peso |
800 kilogramos |
Sistema de control automático fácil de usar del interfaz:

Disposición:

Carta del flujo de trabajo de la producción:

Podemos hacer la solución de deshumedecimiento del suitbale para usted según sus requisitos. Si usted es interés en nuestro producto, contacto nosotros ahora.