Paso hecho modificado para requisitos particulares de la ducha de aire a través de la caja para el taller de la asamblea del teléfono
Características:
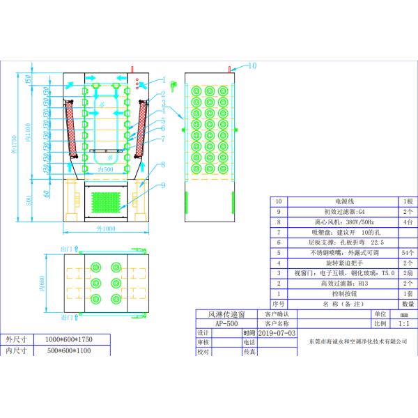
1, material de acero frío o SUS304
2, el proceso que chaflana de la placa circular interna, ningún ángulo muerto
3, lámpara germicida ultravioleta integrada en el top
4, de dos puertas para la ventana cuadrada del ángulo grande
5, ventana panorámica de cristal endurecida hueco doble
6, interruptor de control suave del contacto, programa del microordenador
7, sistema que entrelaza electrónico
8, con el indicador luminoso del poder
9, EVA que sella para asegurar la tirantez
Especificación de la caja de paso:

