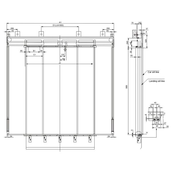
JJ 1100~3200m m dispositivo de aterrizaje de apertura de la puerta del centro de los 4 paneles para el elevador del pasajero
SN-DM161-54
los 4 paneles centran el dispositivo de aterrizaje de la puerta de la abertura
Cerradura de puerta con la certificación autoritaria nacional del departamento
El modo forzado del cierre con un martillo o una primavera pesado, tiene una puerta de cristal con un martillo pesado bajo hom
Voltaje aplicable del contacto de la cerradura de puerta: CA 220v de la C.C. 110v
| JJ | 1100 | 1200 | 1300 | 1400 | 1500 | 1600 | 1700 | 1800 | 1900 | 2000 | 2100 | 2200 | 2300 | 2400 | 2500 | 2600 | 2700 | 2800 | 2900 | 3000 | 3100 | 3200 |
| A1 | 1836 | 1986 | 2136 | 2286 | 2436 | 2586 | 2736 | 2886 | 3036 | 3186 | 3336 | 3486 | 3636 | 3786 | 3936 | 4086 | 4236 | 4386 | 4536 | 4686 | 4836 | 4986 |
| B1 | 150 | 175 | 200 | 225 | 250 | 275 | 300 | 325 | 350 | 375 | 400 | 425 | 450 | 475 | 500 | 525 | 550 | 575 | 600 | 625 | 650 | 675 |
| C1 | 300 | 325 | 350 | 375 | 400 | 425 | 450 | 475 | 500 | 525 | 550 | 757 | 600 | 625 | 650 | 675 | 700 | 725 | 750 | 775 | 800 | 825 |
| D1 | / | 1000 | 1050 | 1100 | 1150 | 1200 | 1250 | 1300 | 1350 | 1400 | 1450 | 1500 | 1550 | 1600 | 1650 | 1700 | ||||||

SN-DM161-56
compromiso acodado 3 del dispositivo de la puerta
Cerradura de puerta con la certificación autoritaria nacional del departamento
El modo forzado del cierre con un martillo o una primavera pesado, tiene una puerta de cristal con un martillo pesado bajo hom
Voltaje aplicable del contacto de la cerradura de puerta: CA 220v de la C.C. 110v
| JJ | 2100 | 2200 | 2300 | 2400 | 2500 | 2600 | 2700 | 2800 | 2900 | 3000 | 3100 | 3200 | 3300 | 3400 | 3500 | 3600 | 3700 | 3800 | 3900 | 4000 |
| A1 | 3036 | 3169 | 3303 | 3436 | 3569 | 3703 | 3836 | 3969 | 4103 | 4236 | 4369 | 4503 | 4636 | 4769 | 4903 | 5036 | 5169 | 5303 | 5436 | 5569 |
| B1 | 225 | 242 | 258 | 275 | 292 | 308 | 325 | 342 | 358 | 375 | 392 | 408 | 425 | 442 | 458 | 485 | 492 | 508 | 525 | 542 |
| C1 | 375 | 392 | 408 | 425 | 442 | 458 | 475 | 492 | 508 | 525 | 542 | 558 | 575 | 592 | 608 | 625 | 642 | 658 | 675 | 692 |
| D1 | 1150 | 1200 | 1250 | 1300 | 1350 | 1400 | 1450 | 1500 | 1550 | 1600 | 1650 | 1700 | 1750 | 1800 | 1850 | 1900 | 1950 | 2000 | 2050 | 2100 |



FAQ
1. ¿Son las cuerdas de alambre del elevador durables?
La cuerda de alambre del elevador tiene disposiciones especiales y requisitos. La configuración está no sólo para la cuerda de alambre y la carga clasificada, pero también consideraba el tamaño de la tracción, como consecuencia, la resistencia a la tensión de la cuerda de alambre es mayor que el peso de la elevación. El factor de seguridad se equipa de la cuerda más que de cuatro cables. No se romperá tan al mismo tiempo.
2. ¿Es peligroso para el apagón repentinamente durante el funcionamiento del elevador?
Si ocurre, el elevador parará automáticamente debido al dispositivo de seguridad eléctrico y mecánico. En caso de apagón, los frenos del elevador tomado automáticamente. Además, los departamentos de la fuente de alimentación tales como caída del sistema prevista, previo aviso también están actuando.
3. ¿Nos quieren estar dañado cuando se cerró repentinamente?
En el proceso cerrado, si la gente toca la puerta del pasillo, la puerta del elevador recomenzará automáticamente sin ningún peligro. Con el interruptor de fijación con abrazadera anti, una vez que la puerta tocó, esta acción de la transferencia hace el elevador incapaz de ser cerrado e incluso de ser abierto de nuevo. Además, la fuerza de cierre está también disponible aquí.
4. ¿Cómo el funcionamiento del elevador?
Los elevadores se actúan con una cuerda de alambre del contrapeso a través de la impulsión de la tracción (del tractor), haciendo altibajos en el carril de guía.
5. ¿Se complica la instalación de la escalera móvil?
Creemos que las funciones de una escalera móvil no son necesariamente proporcionales a la complejidad de la operación. Por lo tanto, las escaleras móviles diseñadas por nosotros aplican una estructura integrada, de modo que el equipo sea más exacto y más eficiente y permita encargar más fácil y más conveniente.
6. ¿Usted tiene cerifications?
Sí, hacemos con ISO9001/el CCC/el CE certificamos para u.